V001713
4 o più locali - Galliate(NO)
NUOVA REALIZZAZIONE IN VENDITA A GALLIATE (NO)
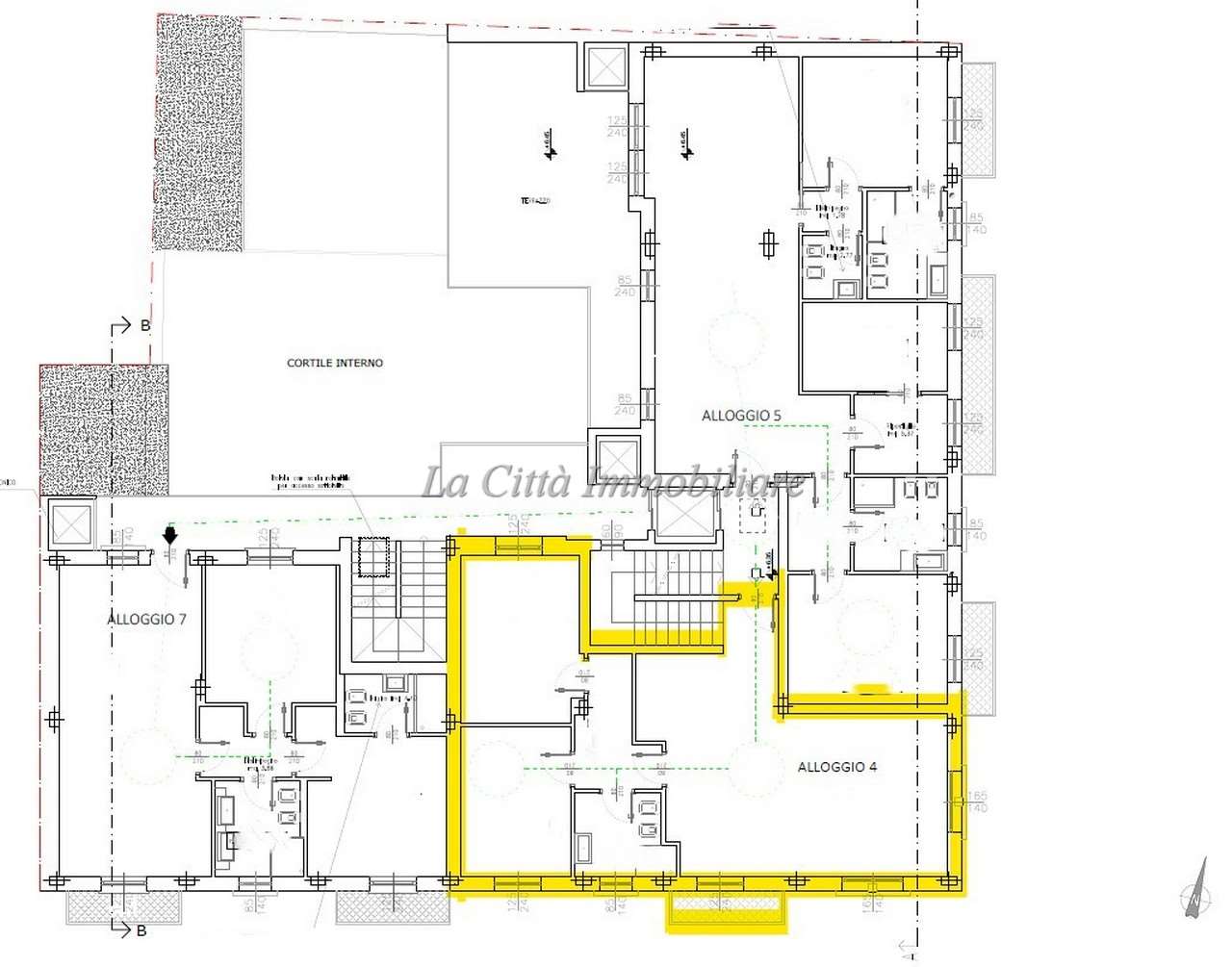
In posizione centrale, comoda a tutti i servizi, nel cuore di Galliate (NO), proponiamo in vendita una nuova ed elegante realizzazione immobiliare composta da 8 unità di diverse tipologie, con possibilità di personalizzazione degli spazi e delle finiture.
Il complesso, edificato da Impresa storica di Galliate, sarà realizzato in Classe Energetica A4, con soluzioni moderne e attente al risparmio energetico. La palazzina, dotata di ascensore, comprenderà appartamenti trilocali, quattro locali e cinque locali con doppi servizi, tutti dotati di ampi terrazzi o balconi vivibili.
Al piano terra saranno disponibili due spazi commerciali, con possibilità di unione, ideali per chi desidera abbinare casa e attività o per investimento.
DUPLEX CON DOPPI SERVIZI
Disponibile al 2° ed ultimo piano
Mq 198,37 commerciali
Composto da soggiorno con cucina a vista, due camere, un bagno finestrato ed un balcone, oltre a bellissima mansarda abitabile posta al terzo piano composta da una camera con cabina armadio, un bagno finestrato, un ampio ripostiglio ed un terrazzo solarium.
Tripla esposizione nord - sud - est.
€ 498.000,00
Disponibilità di box singoli a partire da € 25.000, box doppi e locali cantina.
Caratteristiche principali:
• Riscaldamento autonomo a pavimento con pompa di calore
• Predisposizione per raffrescamento
• Dotazione di Ventilazione Meccanica Controllata
• Fotovoltaico a servizio delle parti comuni
• Serramenti in PVC o alluminio a taglio termico
• Tapparelle elettrificate
• Zanzariere
• Predisposizione impianto di antifurto
• Finiture di pregio personalizzabili
Nessuna mediazione a carico dell’acquirente.
Planimetrie e tutte le informazioni disponibili presso il nostro ufficio.
Contattaci per fissare un appuntamento e scoprire il progetto completo!
In posizione centrale, comoda a tutti i servizi, nel cuore di Galliate (NO), proponiamo in vendita una nuova ed elegante realizzazione immobiliare composta da 8 unità di diverse tipologie, con possibilità di personalizzazione degli spazi e delle finiture.
Il complesso, edificato da Impresa storica di Galliate, sarà realizzato in Classe Energetica A4, con soluzioni moderne e attente al risparmio energetico. La palazzina, dotata di ascensore, comprenderà appartamenti trilocali, quattro locali e cinque locali con doppi servizi, tutti dotati di ampi terrazzi o balconi vivibili.
Al piano terra saranno disponibili due spazi commerciali, con possibilità di unione, ideali per chi desidera abbinare casa e attività o per investimento.
DUPLEX CON DOPPI SERVIZI
Disponibile al 2° ed ultimo piano
Mq 198,37 commerciali
Composto da soggiorno con cucina a vista, due camere, un bagno finestrato ed un balcone, oltre a bellissima mansarda abitabile posta al terzo piano composta da una camera con cabina armadio, un bagno finestrato, un ampio ripostiglio ed un terrazzo solarium.
Tripla esposizione nord - sud - est.
€ 498.000,00
Disponibilità di box singoli a partire da € 25.000, box doppi e locali cantina.
Caratteristiche principali:
• Riscaldamento autonomo a pavimento con pompa di calore
• Predisposizione per raffrescamento
• Dotazione di Ventilazione Meccanica Controllata
• Fotovoltaico a servizio delle parti comuni
• Serramenti in PVC o alluminio a taglio termico
• Tapparelle elettrificate
• Zanzariere
• Predisposizione impianto di antifurto
• Finiture di pregio personalizzabili
Nessuna mediazione a carico dell’acquirente.
Planimetrie e tutte le informazioni disponibili presso il nostro ufficio.
Contattaci per fissare un appuntamento e scoprire il progetto completo!
Impianto Fotovoltaico
Cancello Elettrico
Tapparelle Elettriche
Ascensore
Porta Blindata
Video Citofono
Zanzariere
Superficie | 198 mq |
Piano | 2 |
Tipo Cucina | A Vista |
Balconi | Uno |
Riscaldamento | Autonomo |
Arredi | Non Arredato |
Stato Immobile | In Costruzione |
Terrazzi | Uno |
Totale Piani | Due |
€ 498000
Immobili in vetrina

Attico/4 o più locali - Galliate(NO)
🏡 ATTICO PANORAMICO DA PERSONALIZZARE – GALLIATE (NO)
📍 Zona semicentrale – Fronte ospedale – Ampio parcheggio
Se stai [...]
📍 Zona semicentrale – Fronte ospedale – Ampio parcheggio
Se stai [...]

Villetta schiera/4 o più locali - Novara(NO)
Villetta a Schiera in Esclusivo Complesso Residenziale "Novara Più"
In una delle zone più richieste di Novara, all’interno del presti[...]
In una delle zone più richieste di Novara, all’interno del presti[...]

Attico/3 locali/4 o più locali - Novara(NO)
SAN MARTINO - Via Fossati, nuova realizzazione in Classe Energetica A4.
In stabile di sole 10 unità abitative, completamente ristrutturato, pro[...]
In stabile di sole 10 unità abitative, completamente ristrutturato, pro[...]
2 locali - Galliate(NO)
🏡 Bilocale ristrutturato nel cuore del Centro Storico di Galliate
In una caratteristica corte storica completamente ristrutturata nel 2008, p[...]
In una caratteristica corte storica completamente ristrutturata nel 2008, p[...]

3 locali - Novara(NO)
📍 Novara – Zona Santa Rita, Via Marconi
💶 € 148.000,00 | 🏠 105 mq commerciali | 🚗 Box auto | 🔥 Riscaldamento autonomo | 🌳[...]
💶 € 148.000,00 | 🏠 105 mq commerciali | 🚗 Box auto | 🔥 Riscaldamento autonomo | 🌳[...]

4 o più locali - Novara(NO)
NOVARA CENTRO, VIA PALESTRO – AMPIO QUADRILOCALE RISTRUTTURATO IN CLASSE B - PIANO ALTO LUMINOSISSIMO! CON AMPIA AUTORIMESSA.
Prezzo: € 315.[...]
Prezzo: € 315.[...]

2 locali - Novara(NO)
Novara, Sacro Cuore – Eleganza e Comfort!
📍 Via Frasconi – posizione strategica, tranquilla ma comoda a tutti i servizi.
In [...]
📍 Via Frasconi – posizione strategica, tranquilla ma comoda a tutti i servizi.
In [...]

3 locali/4 o più locali - Galliate(NO)
NUOVA REALIZZAZIONE IN VENDITA A GALLIATE (NO)
In posizione centrale, comoda a tutti i servizi, nel cuore di Galliate (NO), proponiamo in[...]
In posizione centrale, comoda a tutti i servizi, nel cuore di Galliate (NO), proponiamo in[...]

4 o più locali - Novara(NO)
🏛 CENTRO STORICO – Eleganza e Riservatezza nel Cuore della Città 🏛
In una delle zone più suggestive e ricercate del centro stor[...]
In una delle zone più suggestive e ricercate del centro stor[...]

Villa - Novara(NO)
SANT'ANDREA - In posizione riservata, immersa nel verde, proponiamo deliziosa villetta indipendente libera su 4 lati, edificata negli anni '50 e parzi[...]

Ristorante - Galliate(NO)
GALLIATE - CESSIONE D'AZIENDA - In posizione centrale, proponiamo attività di ristorazione ben avviata.
L'attività si svolge in un bellissimo[...]
L'attività si svolge in un bellissimo[...]
2 locali/3 locali - Novara(NO)
TORRION QUARTARA, 2/3 LOCALI + BOX
Se vuoi vivere nella zona tra le più tranquille di Novara e ami vivere immerso nel verde, abbiamo quello che[...]
Se vuoi vivere nella zona tra le più tranquille di Novara e ami vivere immerso nel verde, abbiamo quello che[...]