V001756
4 o più locali/Appartamento - Novara(NO)
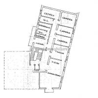
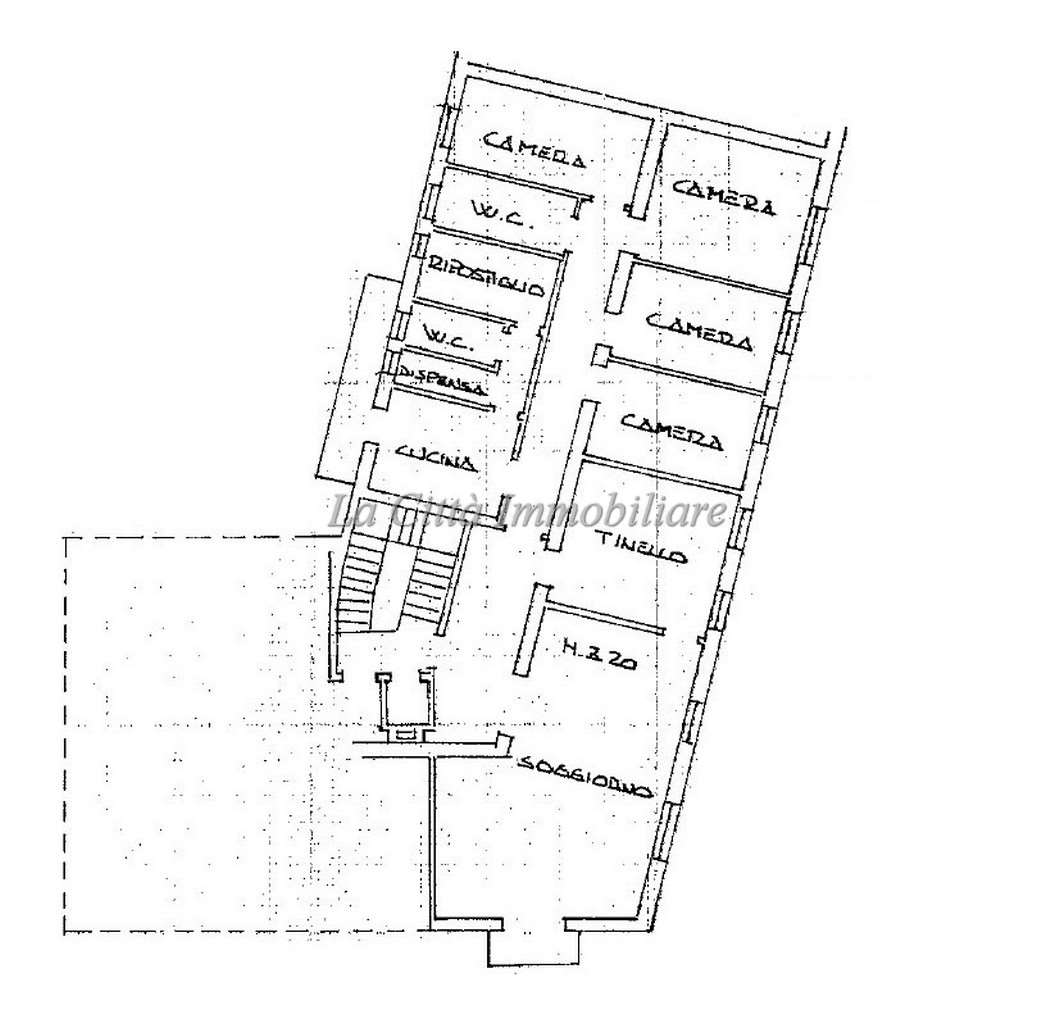
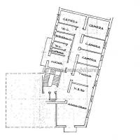
🏡 Prestigioso appartamento 6 LOCALI PIU' DOPPI SERVIZI OLTRE A BOX DOPPIO IN VENDITA – Quartiere Sacro Cuore, Novara
A pochissimi passi da Viale Buonarroti, dall’Ospedale Maggiore della Carità e dal Centro Storico, proponiamo esclusivo ed elegante appartamento di ampia metratura, situato al secondo piano con ascensore di uno stabile signorile.
L’immobile, ristrutturato (in parte nel 2015), offre 230 mq di comfort e rappresentanza, perfetti per chi cerca spazi generosi e una posizione strategica.
- Caratteristiche principali:
Ingresso di rappresentanza
Ampio salone doppio
Cucina abitabile
Sala da pranzo
Camera matrimoniale
Tre ampie camere singole
Due bagni finestrati
Lavanderia e ripostiglio
Due balconi
- Finiture:
Pavimenti in parquet, marmo e ceramica nei servizi
Serramenti in legno con doppi vetri e zanzariere
Riscaldamento centralizzato
Produzione dell’acqua calda sanitaria con caldaia autonoma
Comfort assicurato grazie all’impianto di aria condizionata con n. 5 split.
Completa la proprietà un'ampia cantina e un box di 39 mq con basculante elettrificata.
Prezzo richiesto € 395.000,00 comprensivo di arredi
Disponibilità immediata, libero subito.
Occasione unica da non perdere! Prenota la tua visita!
Ascensore
Aria Condizionata
Lavanderia
Tapparelle Elettriche
Cancello Elettrico
Doppi Vetri
Porta Blindata
Ripostiglio
Zanzariere
| Superficie | 230 mq |
| Piano | 2 |
| Tipo Cucina | Abitabile |
| Balconi | Tre |
| Riscaldamento | Conta Calorie |
| Arredi | Arredato |
| Stato Immobile | Ottimo |
| Totale Piani | Sei |
| Grado | Signorile |
| Acqua Calda | Autonoma |
| Tipo Riscaldam. | Caldaia |
| Serramenti | Ottimo |
| Infissi | Legno Doppio Vetro |
| Lati Liberi | 3 |
| Orientamento | Est Sud Ovest |
| Pavim. Giorno | Parquet |
| Pavim. Notte | Parquet |
| Pavim. Cucina | Ceramica |
| Pavim. Bagno | Ceramica |
| Tipo Soggiorno | Salone |
| Fonte Energetica | Metano |
| Tipo Impianto | Radiatori |
| Classe energetica |
E
I.P.E. 136,08 kwh/mq
|
€ 395000
Spese condominiali annue: € 4600
Immobili in vetrina
Villetta schiera/4 o più locali - Novara(NO)
Villetta a Schiera in Esclusivo Complesso Residenziale "Novara Più"
In una delle zone più richieste di Novara, all’interno del prestigioso comple[...]
Attico/4 o più locali - Galliate(NO)
🏡 ATTICO PANORAMICO DA PERSONALIZZARE – GALLIATE (NO)
📍 Zona semicentrale – Fronte ospedale – Ampio parcheggio
Se stai cercando un attico[...]
Ristorante - Galliate(NO)
GALLIATE - CESSIONE D'AZIENDA - In posizione centrale, proponiamo attività di ristorazione ben avviata.
L'attività si svolge in un bellissimo local[...]
2 locali - Novara(NO)
Nel cuore del quartiere San Martino, in via Magistrini, a pochi passi da Largo Leonardi e in una zona servitissima da tutti i servizi di prima necessi[...]
3 locali - Novara(NO)
Stile e comfort nel cuore del Centro Storico di Novara
Nel pieno Centro Storico di Novara, in una zona tranquilla e riservata, proponiamo in vendita [...]
Villa - Novara(NO)
Villa indipendente con giardino in vendita a Novara – Torrion Quartara 🌳
Se cerchi pace, tranquillità e tanto spazio verde, questa villa è la [...]
1 locale - Novara(NO)
🏡 Monolocale ristrutturato nel cuore del Centro Storico di Novara – Via Fratelli Rosselli
Nel pieno Centro Storico di Novara, in una delle vie [...]
4 o più locali/Appartamento - Novara(NO)
🏡 Prestigioso appartamento 6 LOCALI PIU' DOPPI SERVIZI OLTRE A BOX DOPPIO IN VENDITA – Quartiere Sacro Cuore, Novara
A pochissimi passi da Viale[...]
1 locale/Appartamento/2 locali - Novara(NO)
🏠 Novara Centro – MONOLOCALE A DUE PASSI DALLA STAZIONE!
Ideale per investimento, B&B o per pendolari 🚆
In posizione strategica e centraliss[...]
3 locali - Novara(NO)
🏡 Tra parco e città: vivi la tua casa in salute e relax 🌿
Prossima realizzazione – Residenza I Giardini Poerio
📍 Via Ciro Gastone
Immers[...]
2 locali - Novara(NO)
🏡 Tra parco e città: vivi la tua casa in salute e relax 🌿
Prossima realizzazione – Residenza I Giardini Poerio
📍 Via Ciro Gastone
Immers[...]
2 locali - Galliate(NO)
🏡 Bilocale ristrutturato nel cuore del Centro Storico di Galliate
In una caratteristica corte storica completamente ristrutturata nel 2008, proponi[...]
3 locali/4 o più locali - Galliate(NO)
🏡 Prenota la tua casa dei sogni!
Se la prenoti entro il 31/03/2026, avrai uno sconto esclusivo del 5%.
✨ Non perdere questa occasione unica!
NUO[...]
4 o più locali - Novara(NO)
🏛 CENTRO STORICO – Eleganza e Riservatezza nel Cuore della Città 🏛
In una delle zone più suggestive e ricercate del centro storico, all'int[...]
Appartamento/3 locali - Novara(NO)
CENTRO STORICO - Nel cuore del centro storico di Novara, in via Silvio Pellico, all’interno di uno stabile signorile, proponiamo in locazione un ele[...]
