V001759
2 locali - Novara(NO)
Nel cuore del quartiere San Martino, in via Magistrini, a pochi passi da Largo Leonardi e in una zona servitissima da tutti i servizi di prima necessità, proponiamo in stabile signorile un’interessante opportunità abitativa pronta da vivere o da mettere a reddito.
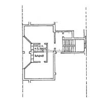
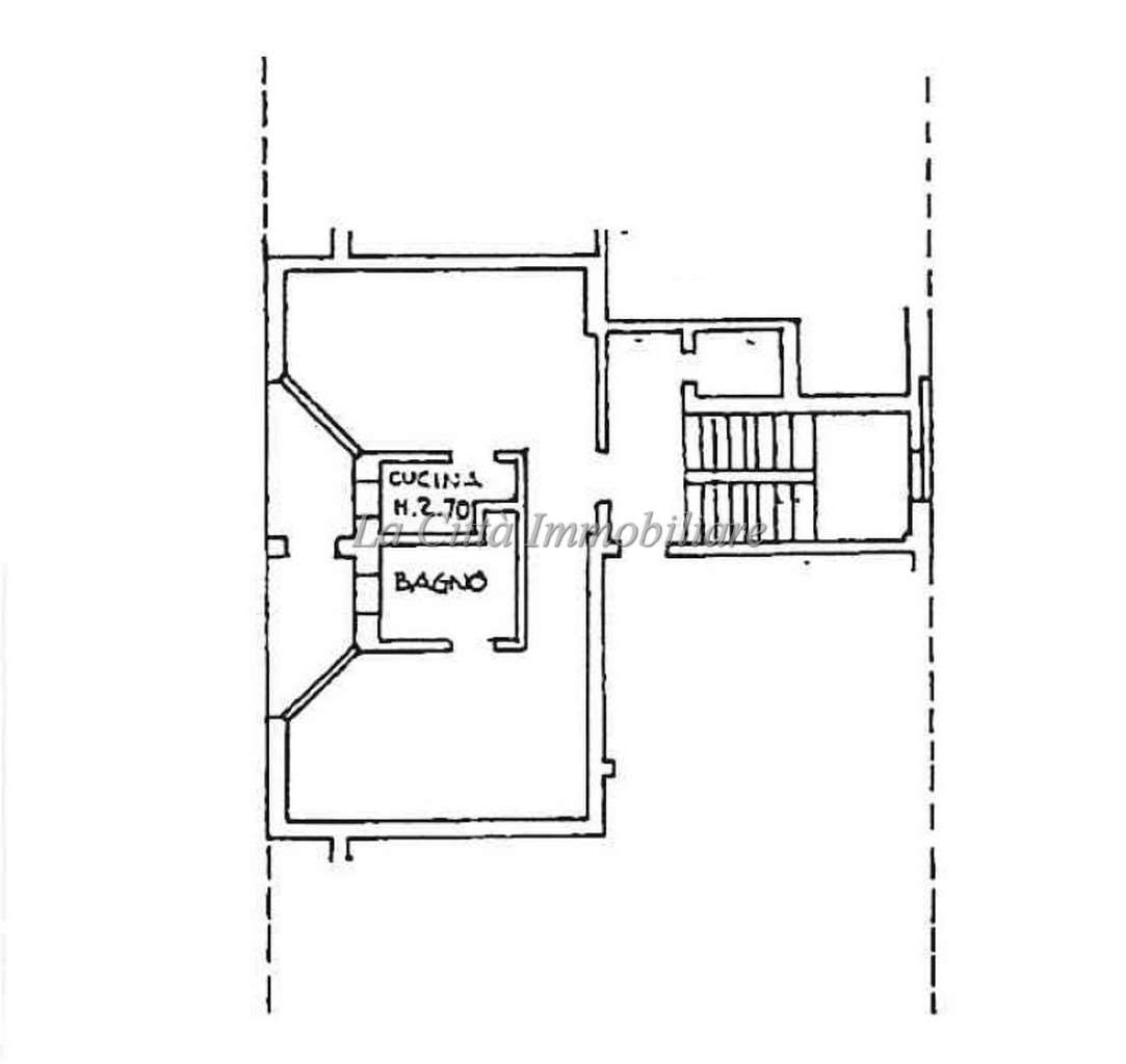
L’appartamento, di circa 52 mq, è sito al quarto piano con ascensore ed è completamente arredato.
Gli spazi sono ben distribuiti e così composti:
Ingresso
Luminoso soggiorno
Cucinotto separato
Camera da letto matrimoniale
Bagno finestrato
Ampio terrazzo esposto a ovest, verandato, dotato di zanzariere e tende da sole, ideale per momenti di relax.
Riscaldamento centralizzato con contabilizzazione dei consumi.
Completano la proprietà una cantina e un'ampia autorimessa.
Prezzo: € 118.000,00
Da visionare!!!
Contattaci per maggiori informazioni o per fissare una visita.
Ascensore
Cancello Elettrico
Doppi Vetri
Porta Blindata
Zanzariere
| Superficie | 52 mq |
| Piano | 4 |
| Tipo Cucina | Cucinotto |
| Riscaldamento | Centralizzato |
| Arredi | Arredato |
| Stato Immobile | Ottimo |
| Terrazzi | Uno |
| Totale Piani | Sei |
| Grado | Medio |
| Acqua Calda | Centralizzata |
| Tipo Riscaldam. | Caldaia |
| Serramenti | Buono |
| Infissi | Metallo Doppio Vetro |
| Lati Liberi | 1 |
| Orientamento | Ovest |
| Pavim. Giorno | Ceramica |
| Pavim. Notte | Ceramica |
| Pavim. Cucina | Ceramica |
| Pavim. Bagno | Ceramica |
| Tipo Soggiorno | Soggiorno |
| Fonte Energetica | Metano |
| Tipo Impianto | Radiatori |
€ 118000
Spese condominiali annue: € 1118
Immobili in vetrina
Villetta schiera/4 o più locali - Novara(NO)
Villetta a Schiera in Esclusivo Complesso Residenziale "Novara Più"
In una delle zone più richieste di Novara, all’interno del prestigioso comple[...]
Attico/4 o più locali - Galliate(NO)
🏡 ATTICO PANORAMICO DA PERSONALIZZARE – GALLIATE (NO)
📍 Zona semicentrale – Fronte ospedale – Ampio parcheggio
Se stai cercando un attico[...]
Ristorante - Galliate(NO)
GALLIATE - CESSIONE D'AZIENDA - In posizione centrale, proponiamo attività di ristorazione ben avviata.
L'attività si svolge in un bellissimo local[...]
3 locali - Novara(NO)
Stile e comfort nel cuore del Centro Storico di Novara
Nel pieno Centro Storico di Novara, in una zona tranquilla e riservata, proponiamo in vendita [...]
Villa - Novara(NO)
Villa indipendente con giardino in vendita a Novara – Torrion Quartara 🌳
Se cerchi pace, tranquillità e tanto spazio verde, questa villa è la [...]
1 locale - Novara(NO)
🏡 Monolocale ristrutturato nel cuore del Centro Storico di Novara – Via Fratelli Rosselli
Nel pieno Centro Storico di Novara, in una delle vie [...]
2 locali - Novara(NO)
BICOCCA - A due passi da Corso XXIII Marzo e da tutti i suoi servizi, proponiamo in stabile di recente costruzione ottimo appartamento arredato posto [...]
4 o più locali - Novara(NO)
🏡 Prestigioso appartamento in vendita – Quartiere Sacro Cuore, Novara
A pochissimi passi da Viale Buonarroti e dall’Ospedale Maggiore della Ca[...]
1 locale - Novara(NO)
🏠 Novara Centro – Monolocale a due passi dalla Stazione! Ideale per investimento o pendolari 🚆
In posizione strategica e centralissima, a poc[...]
3 locali - Novara(NO)
🏡 Tra parco e città: vivi la tua casa in salute e relax 🌿
Prossima realizzazione – Residenza I Giardini Poerio
📍 Via Ciro Gastone
Immers[...]
2 locali - Novara(NO)
🏡 Tra parco e città: vivi la tua casa in salute e relax 🌿
Prossima realizzazione – Residenza I Giardini Poerio
📍 Via Ciro Gastone
Immers[...]
2 locali - Galliate(NO)
🏡 Bilocale ristrutturato nel cuore del Centro Storico di Galliate
In una caratteristica corte storica completamente ristrutturata nel 2008, proponi[...]
3 locali/4 o più locali - Galliate(NO)
🏡 Prenota la tua casa dei sogni!
Se la prenoti entro il 31/12/2025, avrai uno sconto esclusivo del 5%.
✨ Non perdere questa occasione unica!
NUO[...]
4 o più locali - Novara(NO)
🏛 CENTRO STORICO – Eleganza e Riservatezza nel Cuore della Città 🏛
In una delle zone più suggestive e ricercate del centro storico, all'int[...]
2 locali - Novara(NO)
Nel cuore del quartiere San Martino, in via Magistrini, a pochi passi da Largo Leonardi e in una zona servitissima da tutti i servizi di prima necessi[...]
